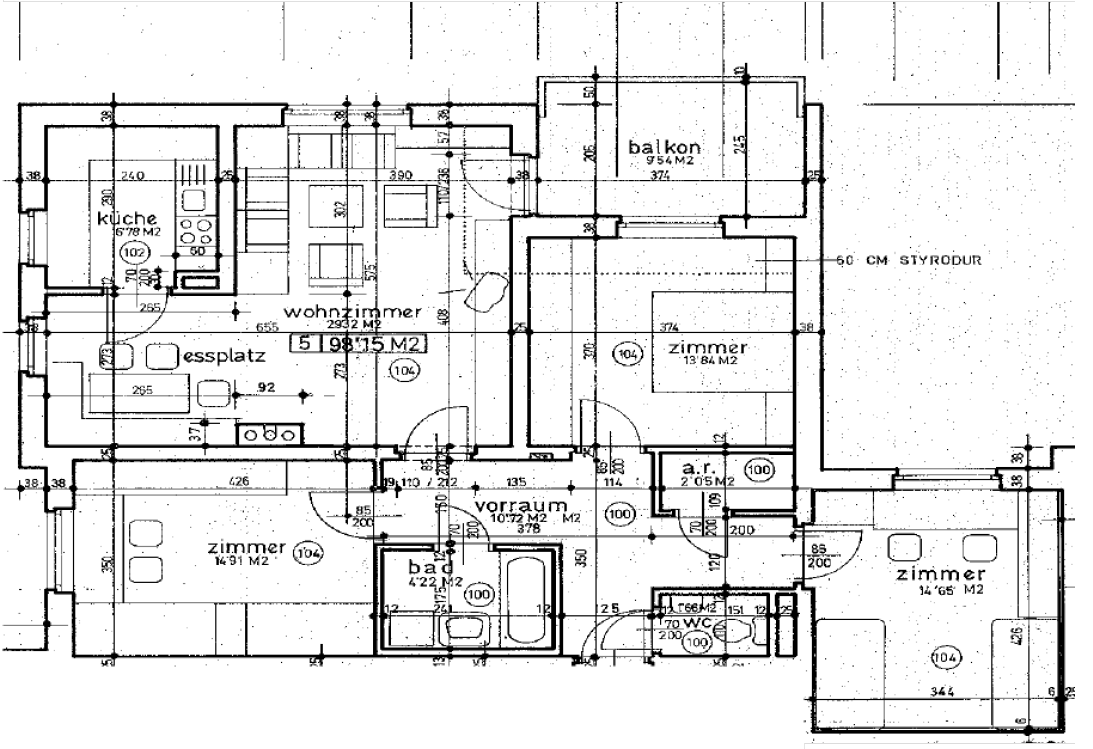
Diese gepflegte 4 Zimmer Eigentumswohnung im Obergeschoß welche im Jahr 1984 erbaut und im Jahr 2015 renoviert wurde überzeugt durch eine großzügige Wohnfläche von 98,15 m², eine durchdachte und familienfreundliche Raumaufteilung sowie ein ruhiges, naturnahes Wohnumfeld.
Die hellen Wohnräume schaffen eine angenehme Wohnatmosphäre und bieten vielfältige Gestaltungsmöglichkeiten für individuelles Wohnen.
Die hellen Wohnräume schaffen eine angenehme Wohnatmosphäre und bieten vielfältige Gestaltungsmöglichkeiten für individuelles Wohnen.
Das Wohnhaus umfasst lediglich 9 Wohneinheiten und zeichnet sich dadurch durch ein angenehmes, privates Wohnklima aus.
Die überschaubare Eigentümergemeinschaft sorgt für Ruhe, Ordnung und ein harmonisches Miteinander – ideal für alle, die Wert auf entspanntes Wohnen legen.
Die überschaubare Eigentümergemeinschaft sorgt für Ruhe, Ordnung und ein harmonisches Miteinander – ideal für alle, die Wert auf entspanntes Wohnen legen.
Ruhige Lage mit hoher Lebensqualität
Die Wohnung befindet sich in 8082 Kirchbach, eingebettet in eine ruhige Wohngegend mit einem beeindruckenden Grünbereich von insgesamt 1.261 m².
Kirchbach bietet eine sehr gute Infrastruktur mit Einkaufsmöglichkeiten, Ärzten, Apotheke, Kindergarten und Schule direkt im Ort.
Die Region ist bekannt für ihre hohe Lebensqualität, ihre Nähe zur Natur sowie zahlreiche Freizeit- und Erholungsmöglichkeiten wie Spazier- und Radwege.
Durch die gute Verkehrsanbindung sind sowohl Feldbach als auch Leibnitz und Graz bequem erreichbar, was den Standort besonders für Pendler attraktiv macht. Kirchbach verbindet auf ideale Weise ruhiges Wohnen im Grünen mit der Nähe zu urbanen Zentren.
Kirchbach bietet eine sehr gute Infrastruktur mit Einkaufsmöglichkeiten, Ärzten, Apotheke, Kindergarten und Schule direkt im Ort.
Die Region ist bekannt für ihre hohe Lebensqualität, ihre Nähe zur Natur sowie zahlreiche Freizeit- und Erholungsmöglichkeiten wie Spazier- und Radwege.
Durch die gute Verkehrsanbindung sind sowohl Feldbach als auch Leibnitz und Graz bequem erreichbar, was den Standort besonders für Pendler attraktiv macht. Kirchbach verbindet auf ideale Weise ruhiges Wohnen im Grünen mit der Nähe zu urbanen Zentren.
Raumaufteilung & Beschreibung
Wohnzimmer
Das Wohnzimmer ist großzügig geschnitten und bietet ausreichend Platz für einen Wohn- und Essbereich.
Durch die Fenster wirkt der Raum hell und freundlich. Von hier aus gelangt man direkt auf den Balkon, der den Wohnraum angenehm erweitert.
Ein Kaminofenanschluss ist vorhanden.
Balkon
Der Balkon ist vom Wohnzimmer aus begehbar und bietet einen ruhigen Blick in den Garten.
Die Markise sorgt bei Bedarf für Beschattung und macht den Balkon zu einem netten Platz für entspannte Stunden im Freien.
Der Balkon ist vom Wohnzimmer aus begehbar und bietet einen ruhigen Blick in den Garten.
Die Markise sorgt bei Bedarf für Beschattung und macht den Balkon zu einem netten Platz für entspannte Stunden im Freien.
Küche & Essbereich
Die Küche mit Essbereich ist funktional angelegt und bietet ausreichend Platz für den täglichen Bedarf.
Der Bereich ist praktisch geschnitten und lässt sich je nach persönlichem Geschmack modernisieren.
Die Küche mit Essbereich ist funktional angelegt und bietet ausreichend Platz für den täglichen Bedarf.
Der Bereich ist praktisch geschnitten und lässt sich je nach persönlichem Geschmack modernisieren.
Schlafzimmer
Die Wohnung verfügt über drei Schlafzimmer, die sich flexibel nutzen lassen – etwa als Schlaf-, Kinder-, Arbeits- oder Gästezimmer.
Die Räume sind ruhig gelegen und bieten eine solide Grundlage für individuelle Gestaltung.
Die Wohnung verfügt über drei Schlafzimmer, die sich flexibel nutzen lassen – etwa als Schlaf-, Kinder-, Arbeits- oder Gästezimmer.
Die Räume sind ruhig gelegen und bieten eine solide Grundlage für individuelle Gestaltung.
Vorraum
Der Vorraum ist geräumig und bietet Platz für Garderobe und Stauraum. Alle Räume der Wohnung sind von hier aus zentral begehbar.
Der Vorraum ist geräumig und bietet Platz für Garderobe und Stauraum. Alle Räume der Wohnung sind von hier aus zentral begehbar.
Badezimmer & WC
Das Badezimmer ist funktional ausgestattet. Das WC ist separat, was besonders im Alltag und bei mehreren Personen von Vorteil ist.
Das Badezimmer ist funktional ausgestattet. Das WC ist separat, was besonders im Alltag und bei mehreren Personen von Vorteil ist.
Abstellraum & Balkon
Ein Abstellraum innerhalb der Wohnung sorgt für zusätzlichen Stauraum. Der Balkon bietet einen geschützten Bereich, der vielseitig nutzbar ist.
Ein Abstellraum innerhalb der Wohnung sorgt für zusätzlichen Stauraum. Der Balkon bietet einen geschützten Bereich, der vielseitig nutzbar ist.
Keller & Allgemeinräume
Im Kellergeschoß stehen den Bewohnern eine Waschküche, ein Trockenraum, ein Kinderwagen- und Fahrradeinstellraum sowie ein Schutzraum zur Verfügung.
Technik & Ausstattung
- Heizung über Radiatoren (Strom)
- Anschluss für Kaminofen vorhanden
- Alternative: energieeffiziente Infrarotplatten möglich
- Sanierungsdarlehen auf dem Objekt vorhanden
- Fenster mit Rollos (Kurbelbedienung) sowie Insektenschutz erhöhen den Wohnkomfort zusätzlich.
Parken & Zusatzmöglichkeiten
- Ein KFZ-Abstellplatz (nicht überdacht) ist im Angebot inkludiert.
- Garagen befinden sich im Nebengebäude und können angemietet werden, zusätzlich besteht die Möglichkeit, ein Carport beim Nachbarn gegen Aufpreis anzumieten.
Alternativ ist auch der Ankauf einer Garage möglich.
Gerne kann die Wohnung besichtigt werden, wir freuen uns auf Ihre Anfrage!




































