Charmante Altbauwohnung im Herzen von Hartberg – renoviert 2020, sofort bezugsbereit
Diese stilvolle, im Jahr 2020 renovierte Altbauwohnung befindet sich in bester Innenstadtlage von Hartberg und vereint historischen Charme mit modernem Wohnkomfort.
Die Stadt Hartberg zählt zu den besterhaltenen Altstädten der Steiermark und überzeugt mit einem vielseitigen Angebot in den Bereichen Kultur, Sport, Tourismus und Wirtschaft – eine ideale Lage zum Leben und Wohlfühlen.
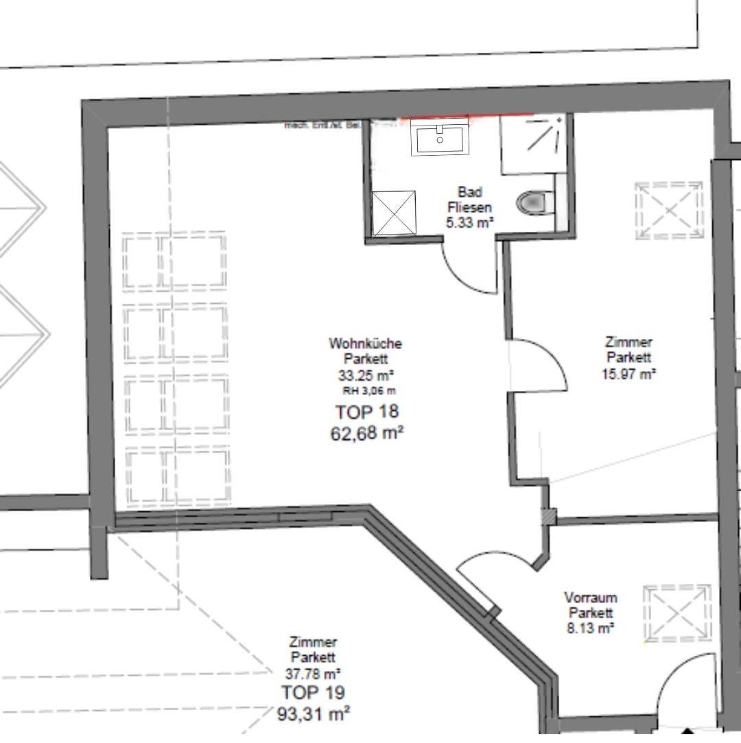
Wohnungshighlights (62,68 m², 2. OG – Dachgeschoss):
– großzügiger Wohn-Essbereich mit edlem Parkettboden
– Küche mit Einbauküche
– helles Schlafzimmer mit Parkettboden
– modernes Badezimmer mit Dusche, Waschbecken, WC und Warmwasserboiler (grau-weiße Fliesen)
– einladender Vorraum
– Klimaanlage für angenehmes Raumklima
– Kellerabteil für zusätzlichen Stauraum (Nr. 18)
– helles Schlafzimmer mit Parkettboden
– modernes Badezimmer mit Dusche, Waschbecken, WC und Warmwasserboiler (grau-weiße Fliesen)
– einladender Vorraum
– Klimaanlage für angenehmes Raumklima
– Kellerabteil für zusätzlichen Stauraum (Nr. 18)
– barrierefreier Zugang durch Lift
– Heizung: Fernwärme
– Heizung: Fernwärme
Im Kaufpreis ist ein nicht überdachter KFZ-Abstellplatz (Nr. 7) bereits inkludiert.
Diese wunderschöne Dachgeschosswohnung überzeugt durch ihre zentrale Lage sowie die hochwertige Ausstattung und das unverwechselbare Dachgeschoss-Flair – ein echtes Schmuckstück im Zentrum von Hartberg!



























