Zentrale 3-Zimmer-Mietwohnung (63,41m²) mit Balkon im Zentrum von Fürstenfeld

Übersicht
Immobilieninfos
Objektnummer:
101.820
Objektart:
Keine_angabe
Ort:
8280 Fürstenfeld
Grösse
Wohnfläche:
63,41 m²
Zimmer:
3
Keller:
vorhanden
Balkon:
1
Parkplätze:
1 (Freiplatz)
Ausstattung
Badezimmer:
1
Mobiliar:
teil
Lift:
nein
Heizung:
Ofen
Bodenbelag:
Fliesen Parkett
Beziehbar ab:
01.05.2026
Preisinformationen Gesamtmiete: € 750,00
HMZ brutto:
€ 595,51
BK brutto:
€ 154,49
MwSt.:
10%
Provision:
Provisionsfrei
Kaution:
€ 4.000,00
Expose
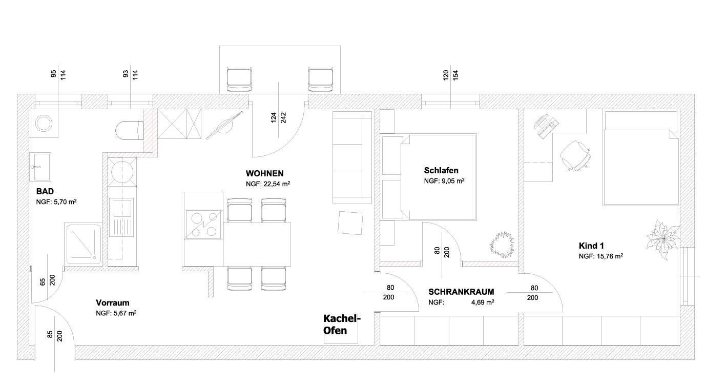
Grundriss
Nebenkosten
Was es über die Immobilie zu sagen gibt ...

Zentrale 3-Zimmer-Wohnung in Fürstenfeld – Ruhig und komfortabel 


Suchen Sie eine nette Wohnung in zentraler Lage? Dann könnte Ihnen diese ca. 65 m² große Zentrumswohnung in Fürstenfeld gefallen! 

Aufteilung: 
  • Vorraum 
  • Badezimmer mit Dusche, WC, Waschbecken und Fenster 
  • Wohn-/Essbereich mit Fernsehanschluss und Einbauküche 
  • 2 Schlafzimmer mit viel Platz 
  • Ruhiger Balkon 
Ausstattung & Extras: 
  • Direkt vor der Wohnung ein Autoabstellplatz 
  • Allgemeine Fahrradgarage 
  • Kellerabteil
Die Wohnung wird aktuell modernisiert: 
Es wird eine Infrarotheizung eingebaut, zusätzlich wird ein neuer Speicherofen installiert. 
Außerdem werden neue Böden verlegt, sodass sich die Wohnung in einem frischen Zustand präsentiert. 

In der Miete enthalten sind die Betriebskosten, der KFZ-Abstellplatz sowie ein Kellerabteil
Die Kosten für Heizung, Haushaltsversicherung und Strom sind nicht inkludiert

Die Wohnung ist ab 01.05.2026 verfügbar. 

Für weitere Informationen oder einen Besichtigungstermin stehen wir Ihnen gerne zur Verfügung.

Sie sehen gerade einen Platzhalterinhalt von Standard. Um auf den eigentlichen Inhalt zuzugreifen, klicken Sie auf den Button unten. Bitte beachten Sie, dass dabei Daten an Drittanbieter weitergegeben werden.

Weitere Informationen
Anfrage senden







    *Pflichtfelder

    Ihre Ansprechperson
    Katharina Eibel
    E-Mail senden
    Tel: +43 664 10 03 554